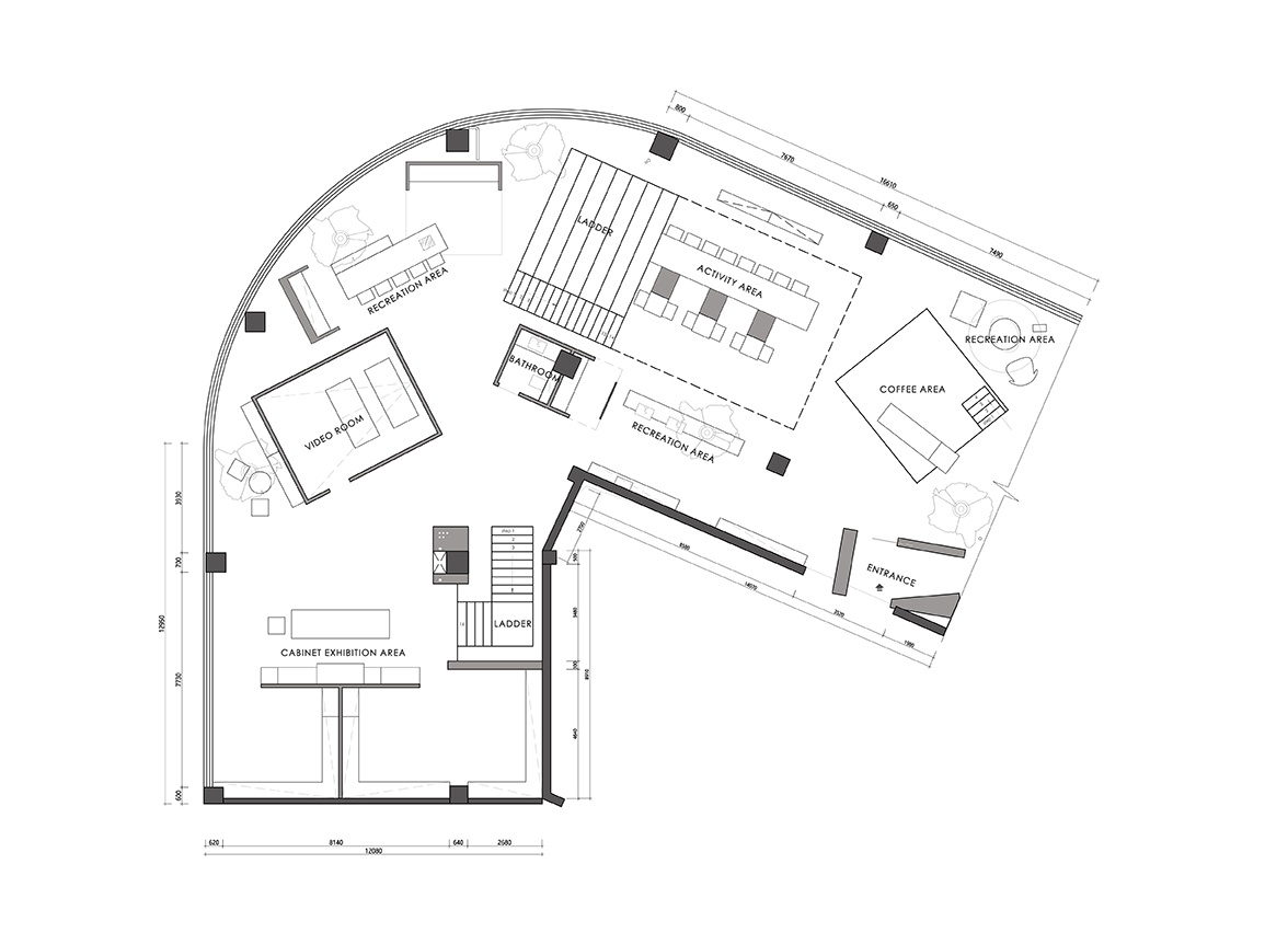
项目名称:营造街巷
项目地址:山西太原
设计公司:HOOOLDESIGN事务所
主案设计师:韩磊
辅助设计师:黄德斌、李静怡
项目面积: 460平米
设计起止日期:2020.8
完工时间:2021.7
主要材料:水磨石、水泥、木地板、石头
业主名称:王耀文、王艳
灯光:三宜想天
材料品牌:Hanrow 汉诺
项目摄影:刘育麟






















营造街巷——HANROW WOOD旗舰店,太原 / HOOOLDESIGN事务所
239
0
0
发布时间:2021-12-21
标签:
街巷
收藏
开通VIP可一键下载图片
