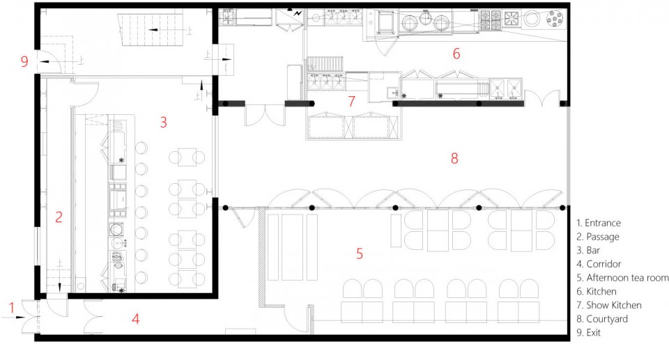
Meeting Someone餐厅位于北京前门大街地区的杨梅竹斜街,是北京国际设计周的主要展览地点之一。设计师作为土生土长的北京人,却和来自上海的业主有着相似的多年国外生活的经历,这一共鸣点使设计师得以在这座非典型的四合院的改造设计中,充分融合了中西方,南北方的意境片段。Meeting Someone包含了酒吧、下午茶、餐厅、屋顶露台及一个小小的内院。一部蓝莓之夜的电影一首1874的音乐作为引子,结合建筑、院落本身高低错落的的空间特点,设计师构想了一个充满了时空交错、富有戏剧感的体验之旅。











北京前门老住宅改造的静谧西餐厅︱刘晓陶
306
0
0
发布时间:2019-07-16
