设计公司:维耕设计
设计师:林志龙、苏楠凯
设计风格:现代风
房屋状况:新成屋(5年以下)
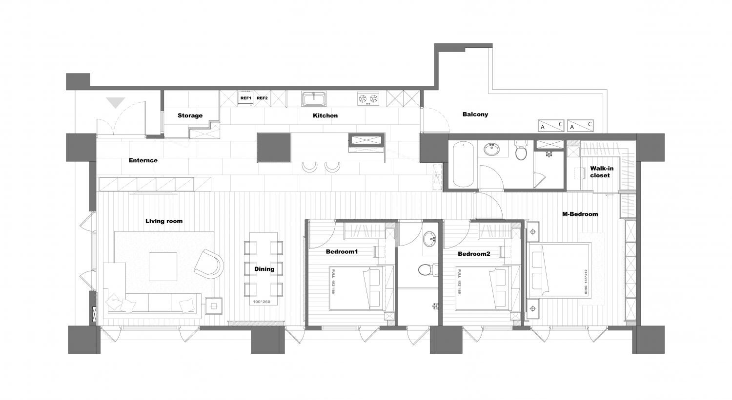
空间坪数:50/坪
居住成员:大人:2人,小孩:2人
空间格局:三房
主要建材:石皮、铁件、可乐石、镜面、木百叶、美耐板、镀钛、平光石材















维耕设计 | 一家四口理想的人文现代宅
229
0
0
发布时间:2019-07-13















Copyright © 2014 - 2025 3dsmj.com All rights reserved. 赣ICP备14001729号-1 赣公网安备36010802001136号
