项目信息 ——
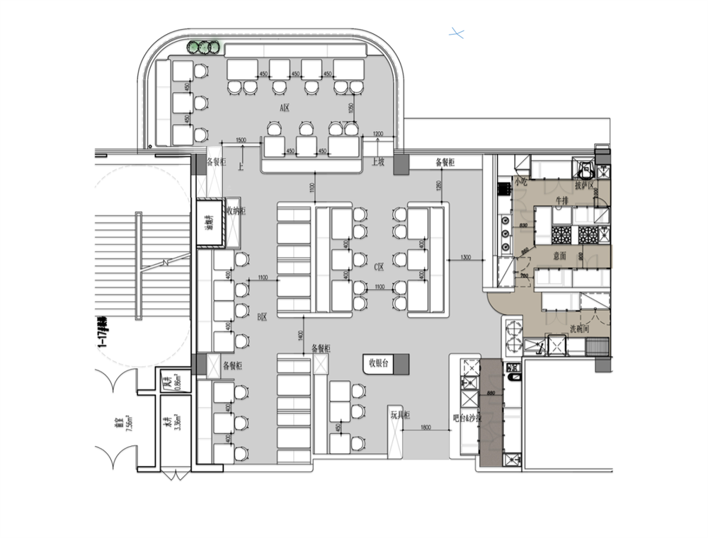
项目名称 : 布拉诺意大利餐厅 明城购物中心店
项目地点 : 中国成都
项目面积 : 室内240㎡
设计时间 : 03 / 2021
开业时间 : 11 / 2021
设计机构 : 万谦集环境艺术设计
设计服务 : 空间 / 陈设
空间设计 : 汪宏 / 谢晓雨
照明设计 : 卧羊照明
空间摄影 : 贺川





















成都布拉诺意大利餐厅 | 万谦集环境艺术设计
157
0
0
发布时间:2022-03-22
项目信息 ——
项目名称 : 布拉诺意大利餐厅 明城购物中心店
项目地点 : 中国成都
项目面积 : 室内240㎡
设计时间 : 03 / 2021
开业时间 : 11 / 2021
设计机构 : 万谦集环境艺术设计
设计服务 : 空间 / 陈设
空间设计 : 汪宏 / 谢晓雨
照明设计 : 卧羊照明
空间摄影 : 贺川




















