首页
3D模型
单体模型
场景模型
沙发
沙发茶几组合
多人沙发
双人沙发
单人沙发
异形沙发
户外沙发
懒人沙发
贵妃椅
椅凳
单椅
吧椅
躺椅
吊椅
休闲椅
户外椅
公共椅
办公椅
按摩椅
床榻/凳子
床具
双人床
单人床
儿童床
床头柜
按摩床
桌几
餐桌
书桌
茶几
边几
吧台
餐桌椅
书桌椅
茶桌椅
梳妆台
端景台
接待台
办公桌椅
灯具
吊灯
射灯
台灯
壁灯
格栅灯
落地灯
路灯
其它灯饰
电器
音响
电脑
电视机
洗衣机
冰箱冰柜
空调供暖
手机相机
碟机投影
日用电器
柜子/架子
书柜
衣柜
酒柜
鞋柜
电视柜
装饰架
储物柜
博古架
吊柜/壁柜
展柜/货架
边柜/玄关柜
陈设饰品
窗帘
地毯
抱枕
墙饰
玩具
钟表
茶具
雕塑
装饰镜
饰品摆件
挂画相框
服饰鞋帽
陶瓷器皿
办公文具
鱼缸水族
旗帜徽章
植物花草
树
灌木
植物墙
盆栽盆景
藤本植物
室外花草
厨卫用品
厨柜
餐具
台盆
浴缸
卫浴柜
厨房器具
酒水食物
洗涤日用品
淋浴房/淋浴构件
坐便器/小便斗
构件五金
窗
门
楼梯
栏杆
柱子
壁炉
五金件
雕花/线条
隔断/屏风
其它构件
器材设备
体育器材
医疗器材
音乐美术
游乐设备
军事器材
公共器材
工业设备
汽车交通
航空
舰船
机动车
非机动车
其它交通工具
人物动物
人物
动物
家装空间
客厅
餐厅
玄关
厨房
阳台
卧室
茶室
书房
卫浴
儿童房
衣帽间
影音室
娱乐室
客餐厅
酒店空间
客房
过道
民宿
宴会厅
电梯厅
会客室
大堂吧
卫生间
酒店大堂
酒店会议
其它
餐饮空间
茶楼
包厢
火锅店
西餐厅
咖啡厅
快餐店
中式餐厅
主题餐厅
日韩料理
自助餐厅
中央厨房
甜品奶茶店
娱乐空间
网咖
洗浴
酒吧
KTV
游乐场
办公机构
办公区
会议室
接待室
茶水间
休息区
公用WC
大堂前台
总经理室
电梯走廊
党政机关
其它
商业空间
展厅
银行
SPA
售楼处
服装店
专卖店
美容美发
商场超市
商业零售
婚纱摄影
公共服务
其它
文体医疗
学校
剧院
图书馆
博物馆
电影院
游泳馆
健身房
医院门诊
广电传媒
培训机构
体育球馆
宗教文化
其它
户外建筑
商业街
别墅外观
园林景观
鸟瞰规划
建筑外观
古建民俗
建筑构件
园艺小品
门面门头
其它
模型专辑
模匠专辑
EV全集
vizpeople
CGAxis
model+model
mantissa
3dgoodplace
国内专辑
材质预设
模匠预设包
木
金属
皮革
石材
玻璃
布料
砖
涂料
其它
材质
贴图
软件
CG教程
画廊
模集工具箱
3D模型
3D模型
材质
贴图
常用软件
CG教程
画廊
VIP模型
VIP特权
免费使用模集工具箱
VIP模型全部免费下载
画廊高清大图一键下载
登录/注册
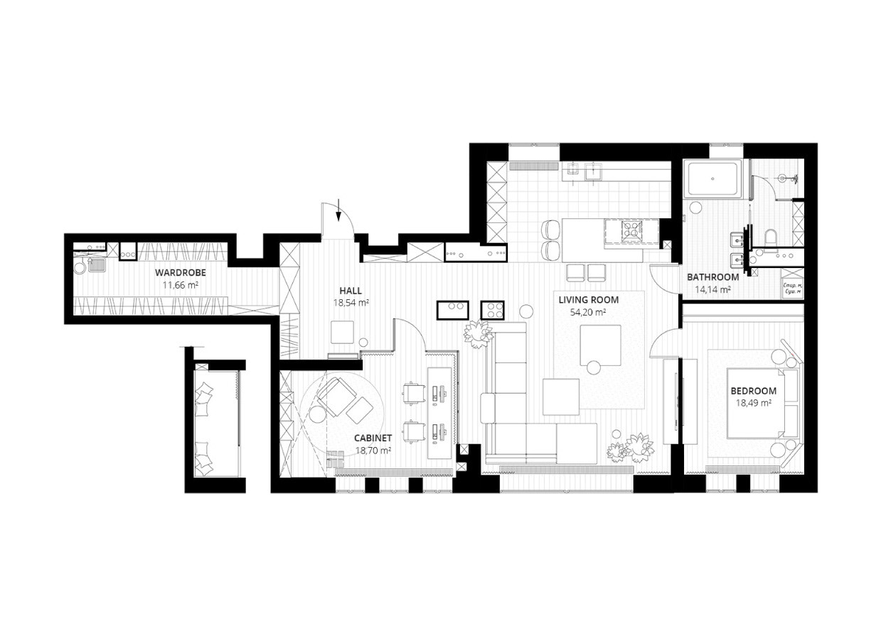
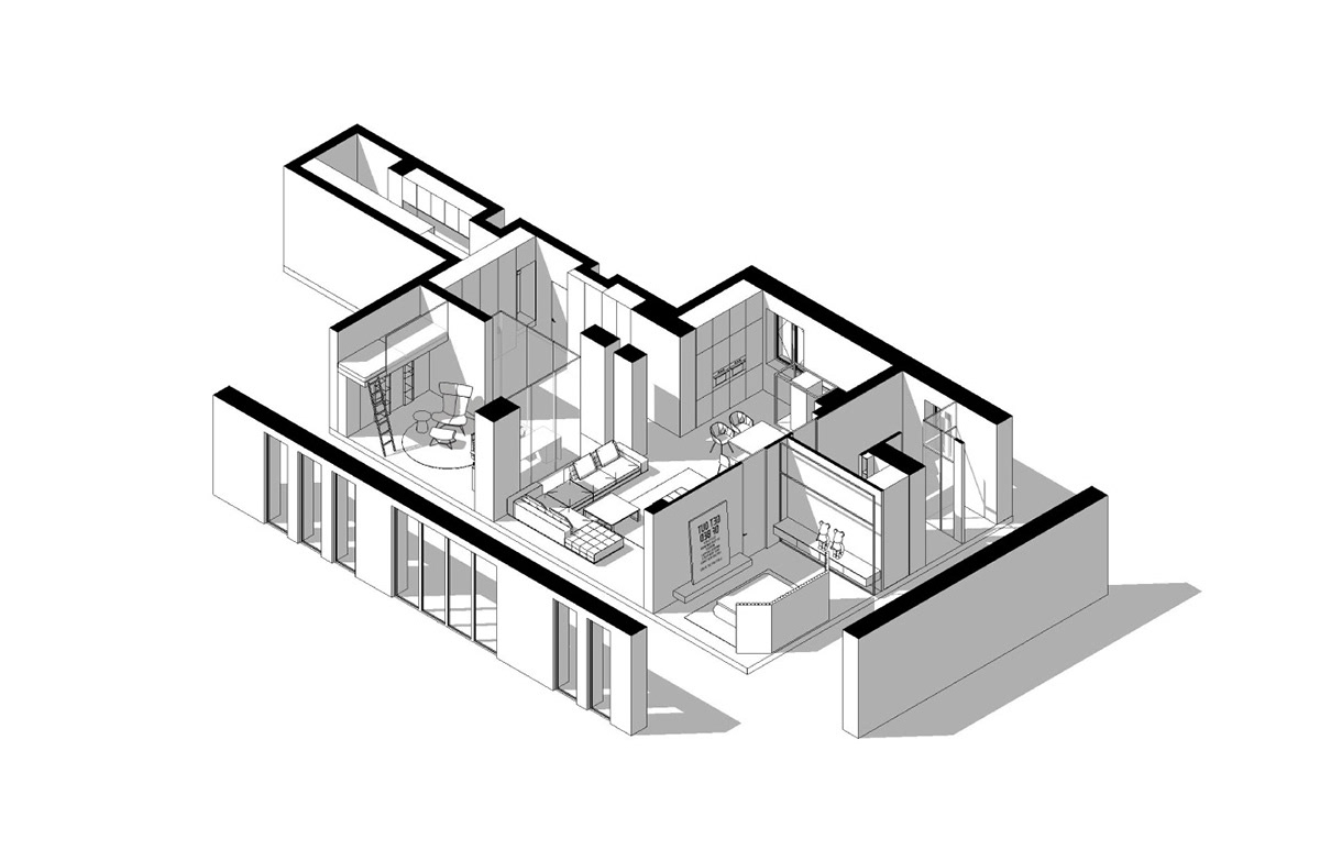
136平,舒适和放松的气氛
当前位置:
画廊
>
国外设计案例
>
1年前
发布
245
0
0
小雪糕
136平,舒适和放松的气氛
245
0
0
发布时间:2020-12-07
标签:
室内设计
国外案例
国外效果
收藏
分享
开通VIP可一键下载图片
相关作品
收录收藏夹
TA的主页
光之屋
KIM设计 | HOUSE 无需刻意去做手法,我只是将本来心中所想的表达出来!
让居家与办公产生温柔的共鸣 | 池旻烨
红山设计 | 北京 170㎡ 陶宅
1
发表评论
136平,舒适和放松的气氛
评论
收藏
0